Kriterler
Fiyat
 
Metrekare
 
Odalar
 
Kat
 
İnşa yılı
 
Isınma şekli
Isınma aracı

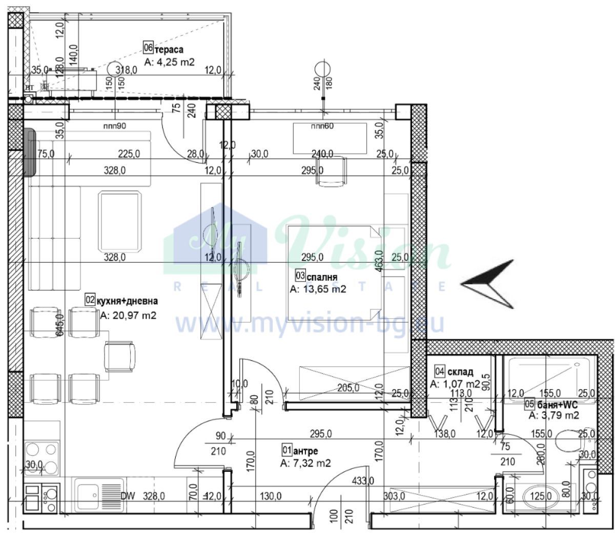
Daire Satılık

Sofia City, Darvenitsa

185.300€ | 362.415,30лв

My Vision Real Estate
Daire Satılık Darvenitsa (Sofia City)
ID
DPSD014
Büyüklük
58 Metrekare(m²)
Metrekare fiyatı
3.195€ | 6.248,54лв
Semt
Darvenitsa (Sofia City)
Odalar
1
Kat
1. kat
İnşa yılı
2025
Banyolar
1
Durum
Yeni bina

Özellikleri

  • Asansör