Kriterien
Preis
 
Fläche
qm
 
qm
Zimmer
 
Stockwerk
 
Baujahr
 
Heizungstyp
Heizungsart

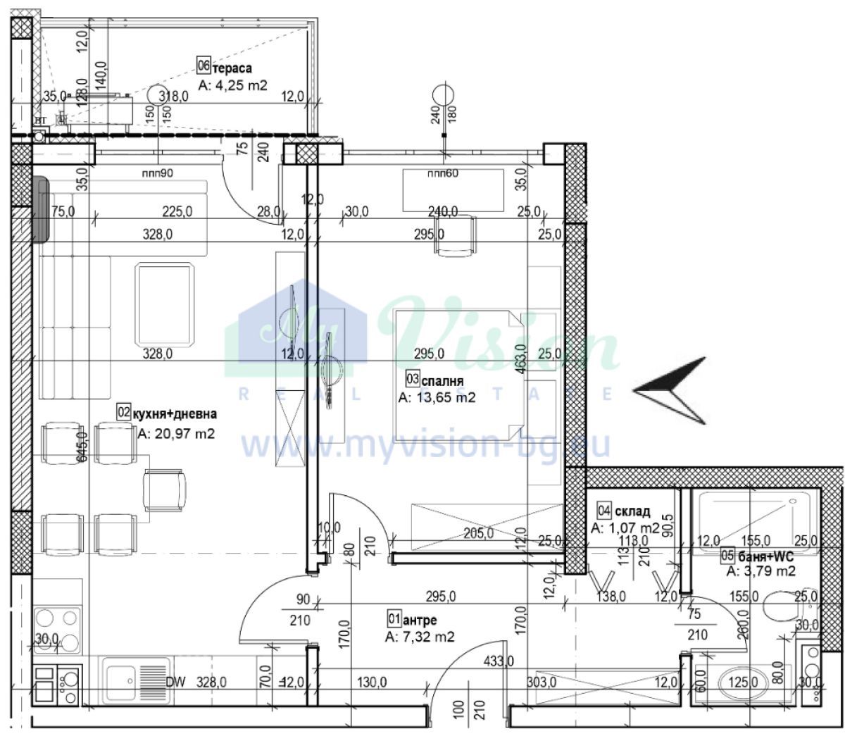
Apartment zu verkaufen

Sofia City, Darvenitsa

185.300€ | 362.415,30лв

My Vision Real Estate
Apartment zu verkaufen Darvenitsa (Sofia City)
ID
DPSD014
Fläche
58 qm
Preis per qm
3.195€ | 6.248,54лв
Nachbarschaft
Darvenitsa (Sofia City)
Zimmer
1
Stockwerk
1.
Baujahr
2025
Badezimmer
1
Zustand
Neubau

Eigenschaften

  • Aufzug