Κριτήρια
Τιμή
 
Εμβαδόν
τ.μ.
 
τ.μ.
Δωμάτια
 
Όροφος
 
Έτος κατασκευής
 
Τύπος Θέρμανσης
Μέσο Θέρμανσης

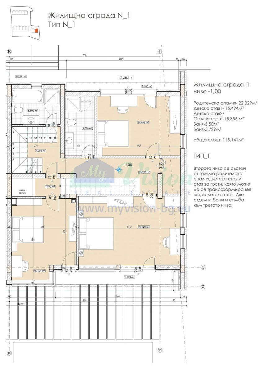
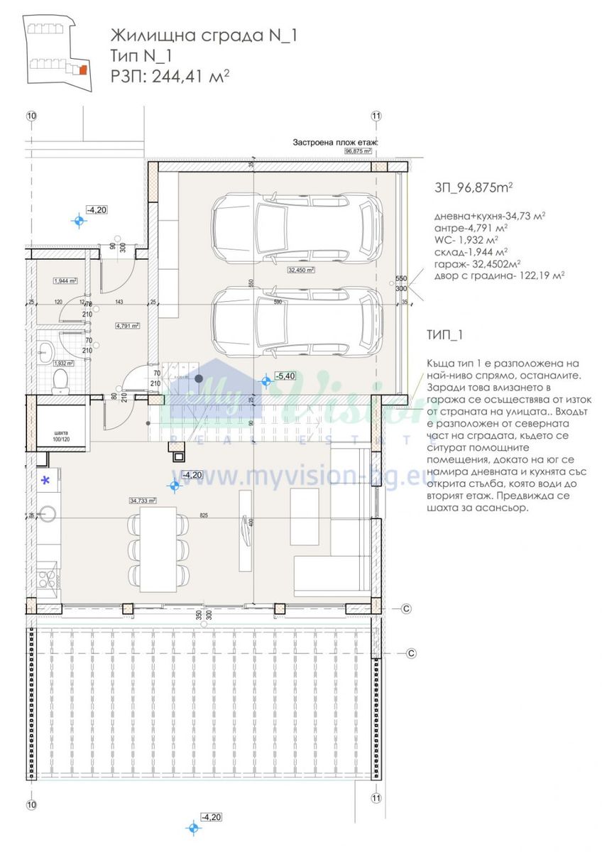
Μονοκατοικία προς πώληση

Sofia, Sofia City

500.000€ | 977.915,00лв

ID
SSSAPH
Εμβαδόν
300 τ.μ.
Τιμή ανά τ.μ.
1.667€ | 3.259,72лв
Περιοχή
Sofia City (Sofia)
Ζώνη
Αγροτική ζώνη
Δωμάτια
3
Σύστημα Θέρμανσης
Αυτόνομη θέρμανση (Ρεύμα)
Επίπεδα
2
Μπάνια
2

Χαρακτηριστικά

  • Χωρίς μεσιτική αμοιβή για τον αγοραστή