Kriterien
Preis
 
Fläche
qm
 
qm
Zimmer
 
Stockwerk
 
Baujahr
 
Heizungstyp
Heizungsart

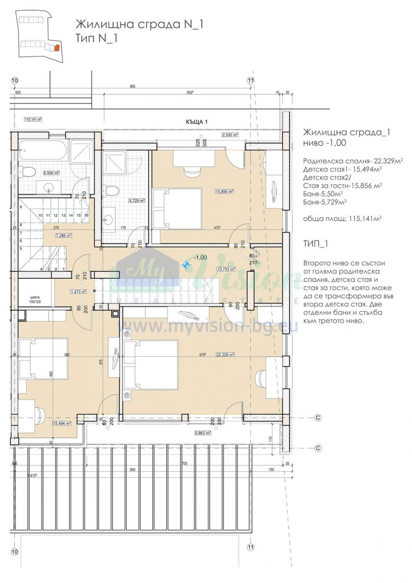
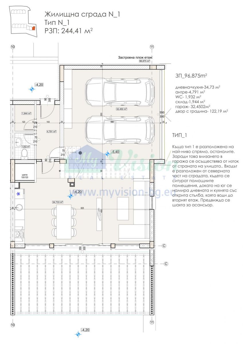
Einfamilienhaus zu verkaufen

Sofia, Sofia City

500.000€ | 977.915,00лв

My Vision Real Estate
ID
SSSAPH
Fläche
300 qm
Preis per qm
1.667€ | 3.259,72лв
Nachbarschaft
Sofia City (Sofia)
Zone
Landwirtschaftszone
Zimmer
3
Heizanlage
Autonome Heizung (Strom)
Stockwerke
2
Badezimmer
2

Eigenschaften

  • ohne Maklergebühr