Критерии
Цена
 
Площ
кв.м.
 
кв.м.
Спални
 
Етаж
 
Година на строеж
 
Начин на отопление
Средство за отопление

Апартамент за продажба

София Град, Дървеница

445.470€ | 871.263,59лв

My Vision Real Estate

Референтен код: DPSD016 (моля, споменете този код, когато се свързвате с нас)

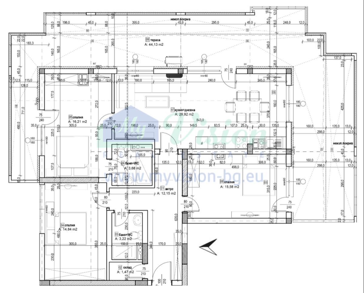
Ние от MyVision Real Estate сме горди да Ви предложим четиристаен апартамент в кв.Дървеница.
Състои се от антре,дневна с кухня и трапезария, три спални,баня с WC,отделно тоалетна,склад,голяма тераса от 44кв.м..Срок на завършване - 2025г.Качествено изпълнение. Гъвкава схема на плащане.Възможност за гараж или парко място.Доказан инвеститор.Този апартамент ще бъде ваш за 445470евро
Ако поискате повече информация относно този имот, можете да се свържете с Диди Попова: +359 888344414 или по имейл: office@myvision-bg.eu
www.myvision-bg.eu

ID
DPSD016
Квадратура
196 кв.м.
Цена на кв.м.
2.273€ | 4.445,22лв
Област
Дървеница (София Град)
Спални
3
Етаж
6-ти
Година на строеж
2025
Бани
2
Статус
Ново строителство

.