Kriterien
Preis
 
Fläche
qm
 
qm
Zimmer
 
Stockwerk
 
Baujahr
 
Heizungstyp
Heizungsart

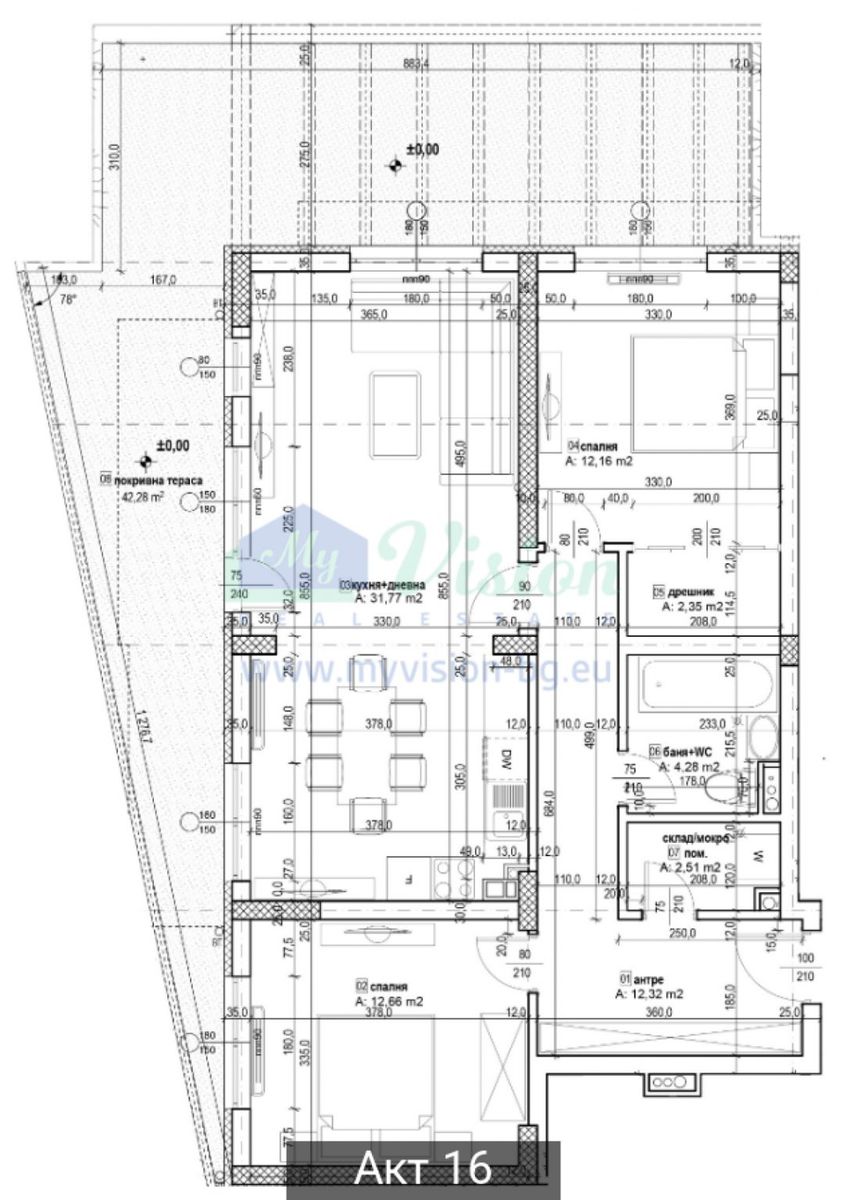
Apartment zu verkaufen

Sofia City, Krastova Vada

327.366€ | 640.272,24лв

My Vision Real Estate
Apartment zu verkaufen Krastova Vada (Sofia City)
ID
DPSKV001
Fläche
147 qm
Preis per qm
2.227€ | 4.355,59лв
Nachbarschaft
Krastova Vada (Sofia City)
Zimmer
2
Stockwerk
Erdgeschoss
Baujahr
2025
Heizanlage
Autonome Heizung (Strom)
Badezimmer
2
Zustand
Neubau