Kriterien
Preis
 
Fläche
qm
 
qm
Zimmer
 
Stockwerk
 
Baujahr
 
Heizungstyp
Heizungsart

Apartment zu verkaufen

Sofia City, Poligona

454.400€ | 888.729,15лв

My Vision Real Estate
Apartment zu verkaufen Poligona (Sofia City)
ID
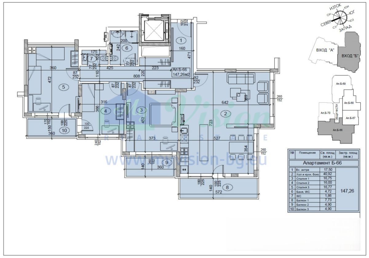
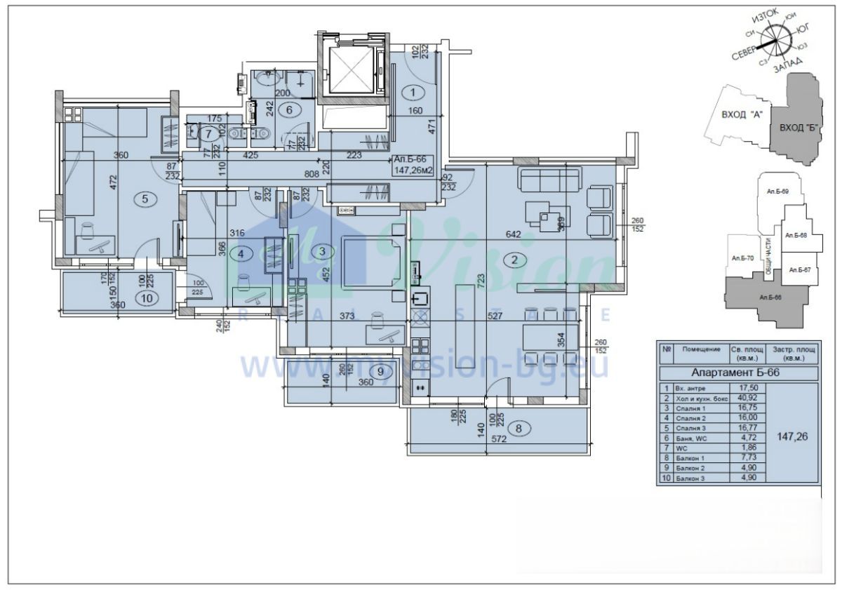
VPSSDБ66
Fläche
169 qm
Preis per qm
2.689€ | 5.258,75лв
Nachbarschaft
Poligona (Sofia City)
Zimmer
3
Stockwerk
10.
Baujahr
2024
Heizanlage
Autonome Heizung (Strom)
Badezimmer
2
WC
1
Zustand
Neubau

Eigenschaften

  • Aufzug
  • Garten