Kriterien
Preis
 
Fläche
qm
 
qm
Zimmer
 
Stockwerk
 
Baujahr
 
Heizungstyp
Heizungsart

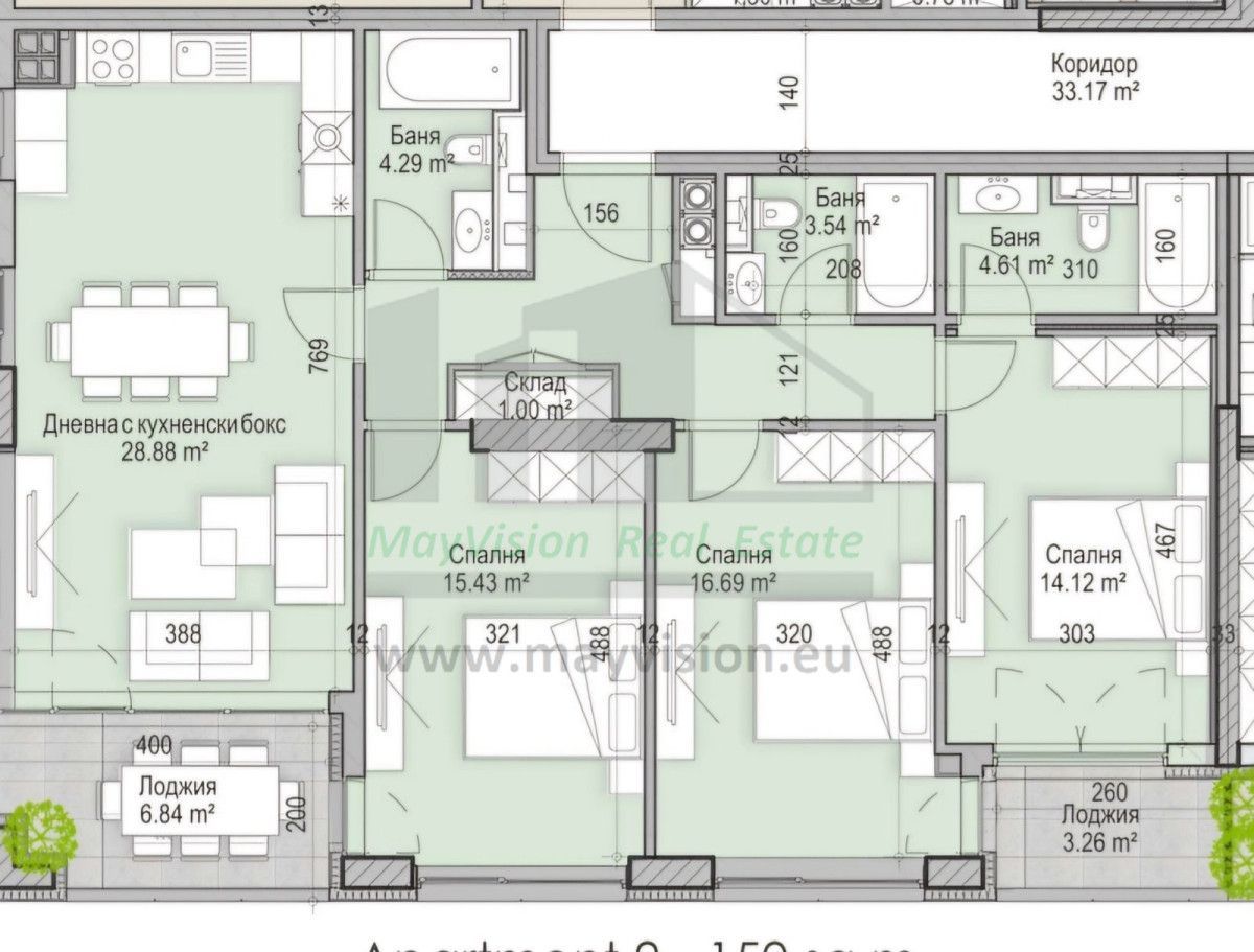
Apartment zu verkaufen

Sofia City, Krastova Vada

450.000€ | 880.123,50лв

My Vision Real Estate
Apartment zu verkaufen Krastova Vada (Sofia City)
ID
ZNSKV002
Fläche
150 qm
Preis per qm
3.000€ | 5.867,49лв
Nachbarschaft
Krastova Vada (Sofia City)
Zimmer
3
Stockwerk
5.
Baujahr
2025
Heizanlage
Zentralheizung (Flüssiggas)
Badezimmer
3
Zustand
Neubau