Kriterien
Preis
 
Fläche
qm
 
qm
Zimmer
 
Stockwerk
 
Baujahr
 
Heizungstyp
Heizungsart

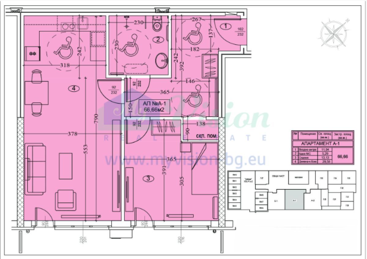
Apartment zu verkaufen

Sofia City, Poligona

200.300€ | 391.752,75лв

My Vision Real Estate
Apartment zu verkaufen Poligona (Sofia City)
ID
VPSP01
Fläche
74 qm
Preis per qm
2.707€ | 5.293,96лв
Nachbarschaft
Poligona (Sofia City)
Zimmer
1
Stockwerk
Erdgeschoss
Baujahr
2023
Heizanlage
Zentralheizung (Strom)
Badezimmer
1
Zustand
Neubau